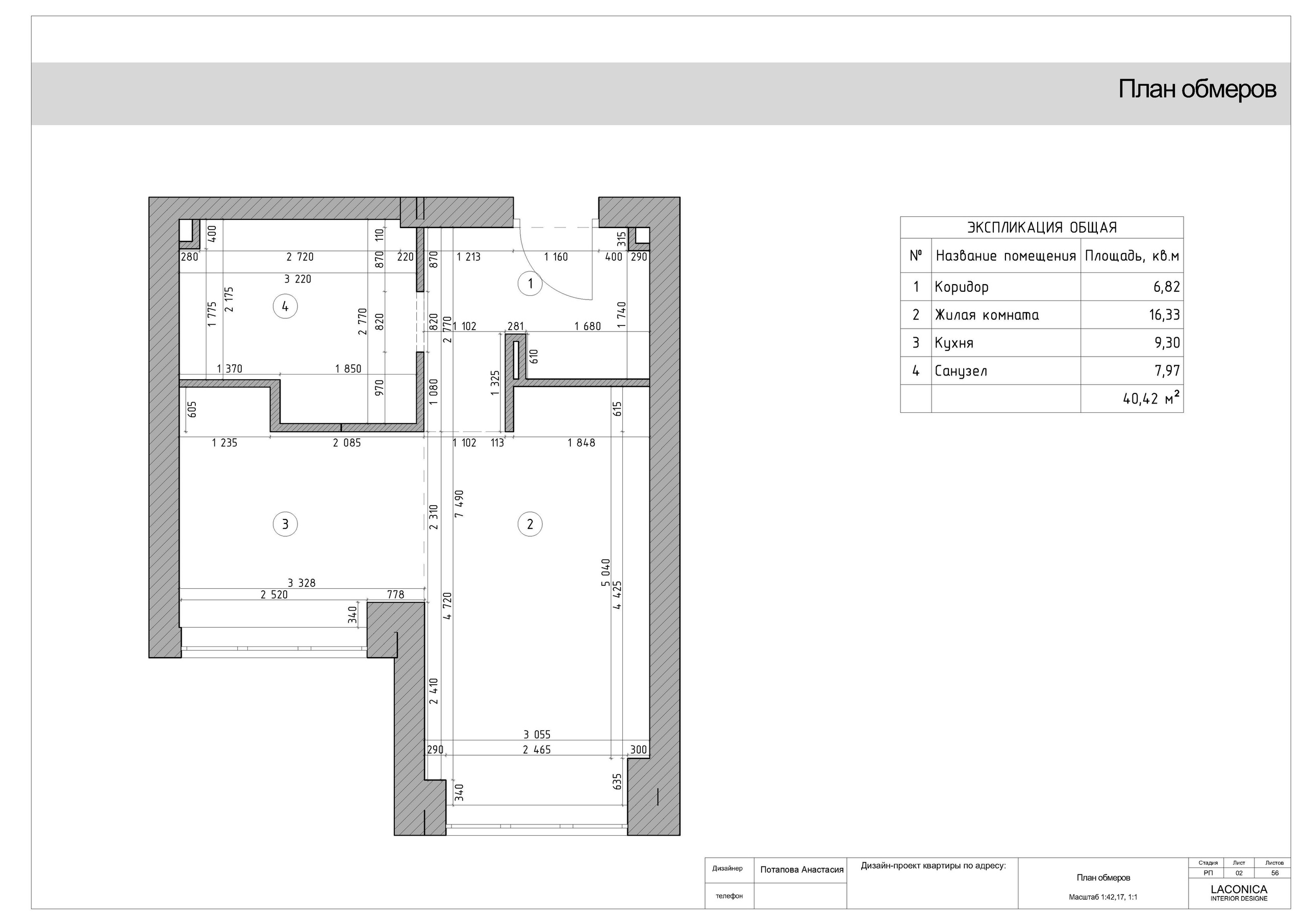
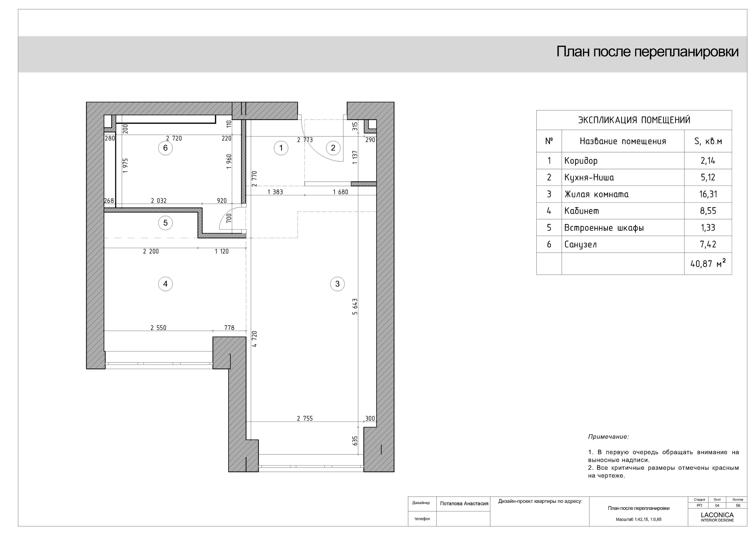
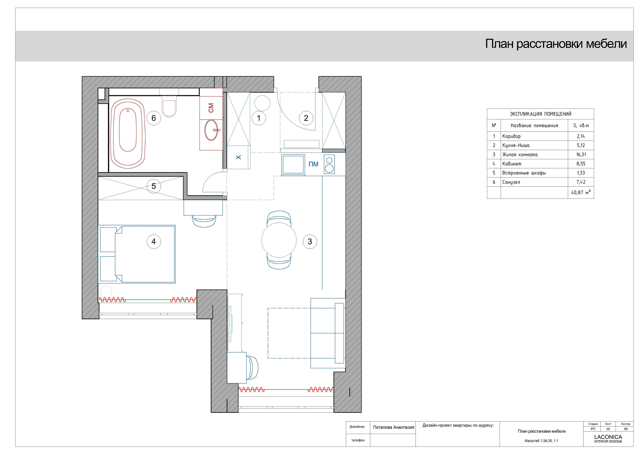
Проект планировочного решения для молодой девушки. Планировка застройщика не отвечала запросу заказчицы, не хватало уединённости и функционала. Проект перепланировки позволил выделить отельную спальню, увеличить количество мест хранения и организовать просторную кухню-гостиную.














