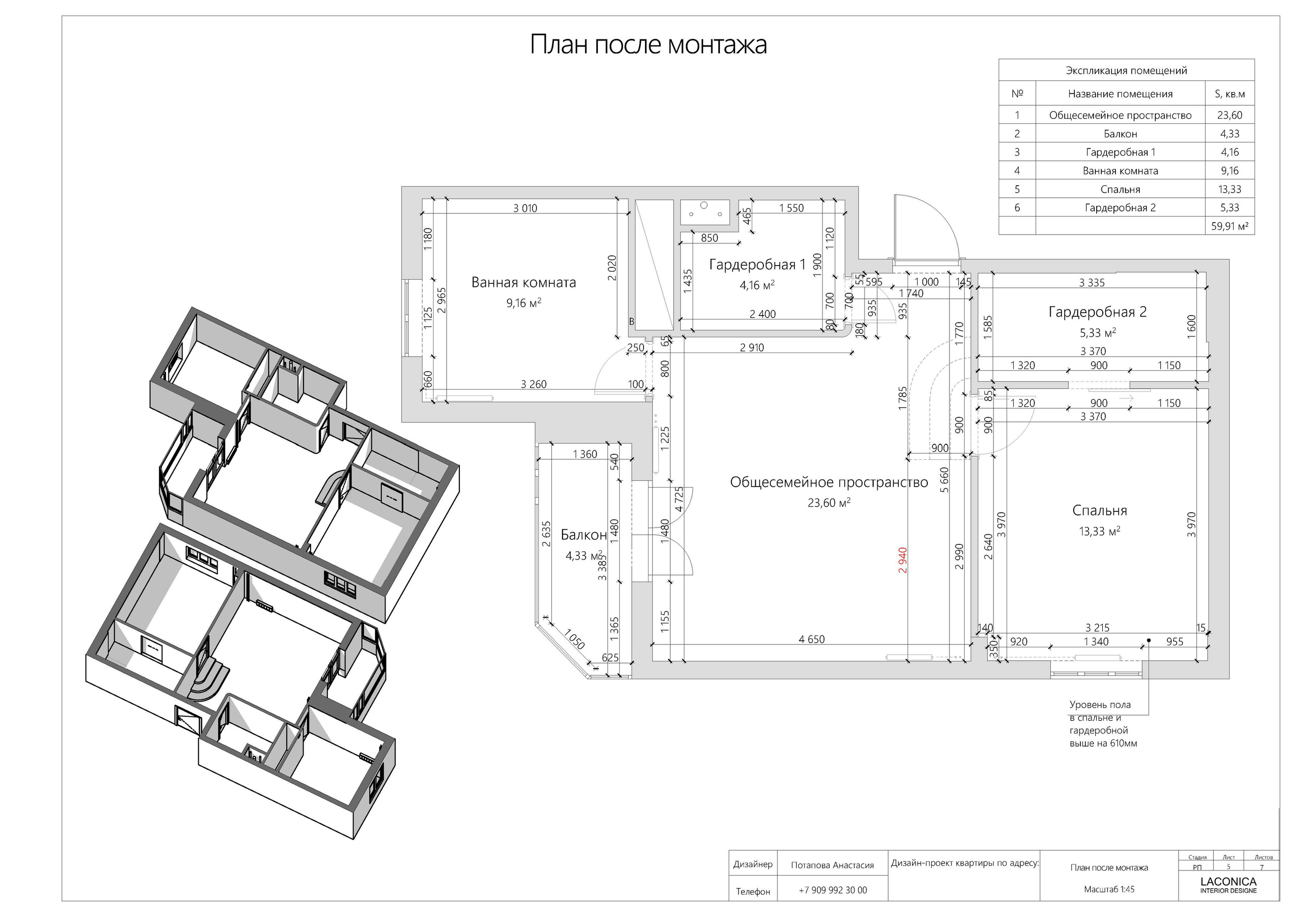
Проект в историческом центре столицы для молодой и успешной девушки. Квартира отображает уникальный характер и интересы заказчицы. Дом после реконструкции с высокими потолками, где удалось реализовать смелые решения, сочетая их с уникальностью материалов ручной работы и современными технологиями. Благодаря перепланировке, как и прежде в других проектах студии, удалось изменить пространство: выделить просторную кухню-гостиную для веселых встреч с друзьями, воплотить мечту с отдельно стоящей ванной у окна и, конечно же, организовать гардеробную в спальне, а так же в прихожей.
Когда ожидания совпадают с реальностью
Визуализация VS Реализация











































































